400-8010-993/13392110725

填写预约人信息

老人信息

《个人信息使用权限》

温馨公寓

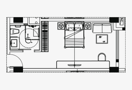
老年公寓单人间追求淡雅节制、深邃禅意的感觉。日式装修注重与大自然相融合,温馨,和谐。

老年公寓双人间简约而不简单,旅居游学入住温馨如家,细节点滴体现以人为本。

老年公寓一房一厅简约而不简单,旅居游学入住温馨如家,细节点滴体现以人为本。

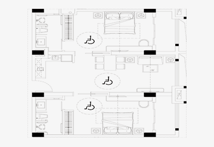
老年公寓两房一厅面积达96平米,布局现代简约,主次搭配。宽敞的客厅,星级标配的家居配置,子女儿孙过来小住。

微信扫码二维码

分享到朋友圈